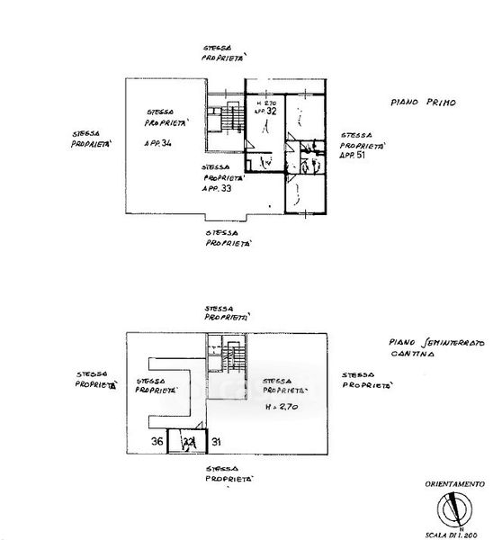
Appartamento in vendita Via Massimo Gorky , San Giuliano Milanese
Salva
Casa.it
1/21
  • Street View
  • Map