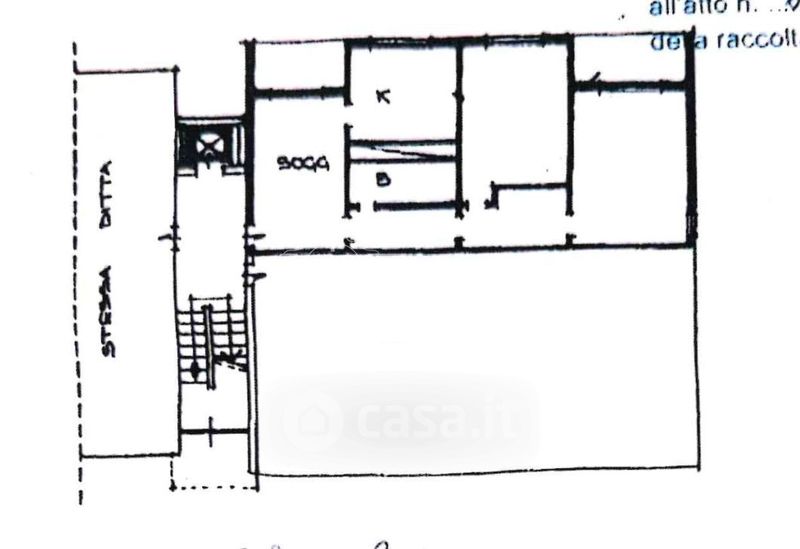
Appartamento in vendita Via Massimo Gorky 18, San Giuliano Milanese
Salva
Casa.it
1/31
  • Street View
  • Map