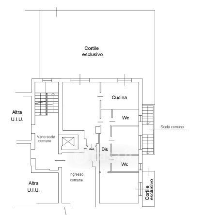
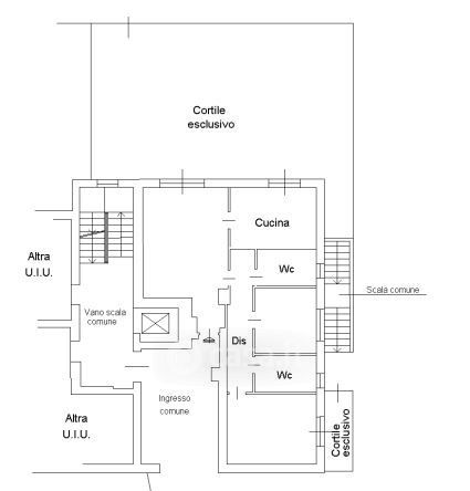
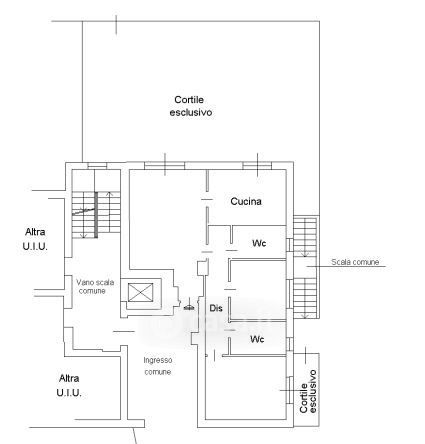
Appartamento in vendita Via Borsellino , San Giuliano Milanese
Salva
Casa.it
1/67
  • Street View
  • Map