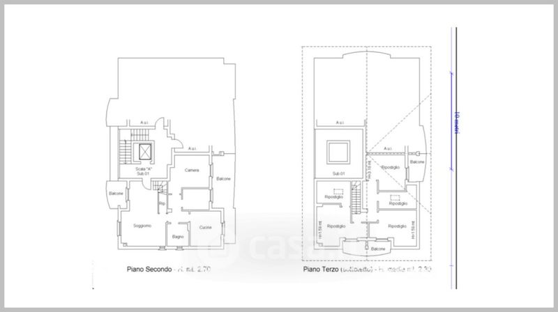
Appartamento in vendita Via Bergamo , San Paolo d'Argon
Salva
Casa.it
1/37
  • Street View
  • Map