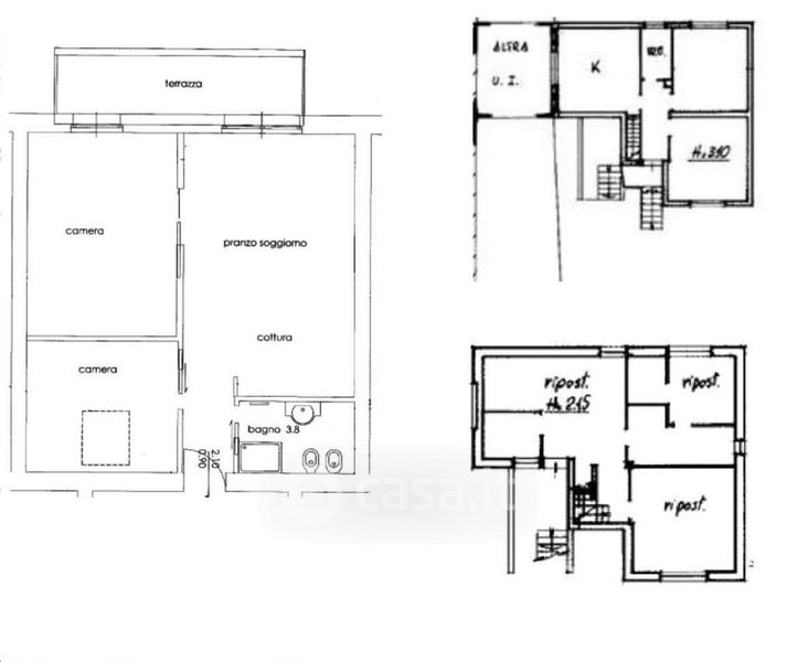
Appartamento in vendita Via Unità d'Italia 77, San Rocco al Porto
Salva
Casa.it
1/17
  • Street View
  • Map