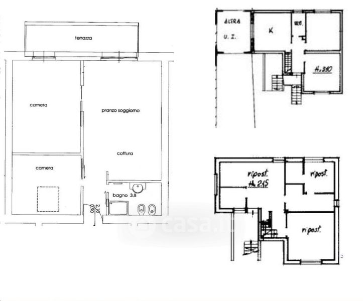
Appartamento in vendita Via Unità d'Italia 74, San Rocco al Porto
Salva
Casa.it
1/13
  • Street View
  • Map