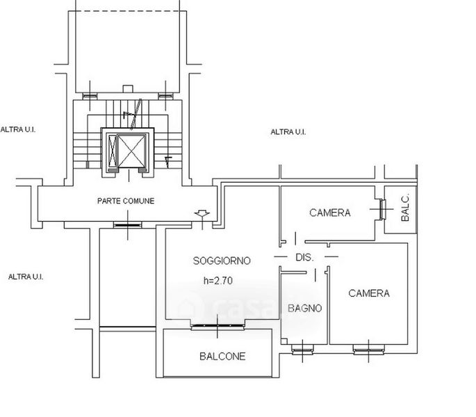
Appartamento in vendita Via Salerano 45, San Zenone al Lambro
Salva
Casa.it
1/21
  • Street View
  • Map