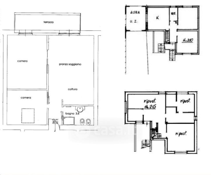
Appartamento in vendita Via Milano 1, San Zenone al Lambro
Salva
Casa.it
1/13
  • Street View
  • Map