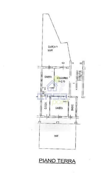
Appartamento in vendita Via Giuseppe Garibaldi 22 -48, Sant'Angelo Lodigiano
Salva
Casa.it
1/37
  • Street View
  • Map