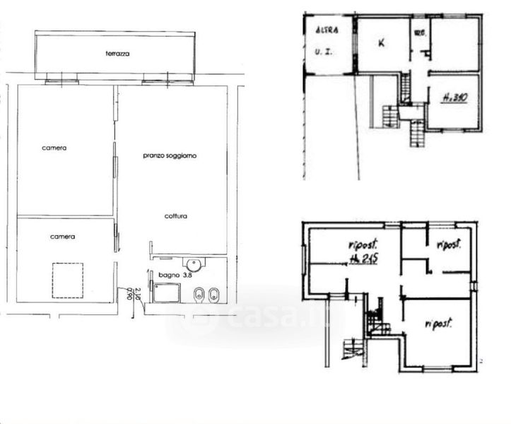
Appartamento in vendita Via Madre Cabrini 55, Sant'Angelo Lodigiano
Salva
Casa.it
1/5
  • Street View
  • Map