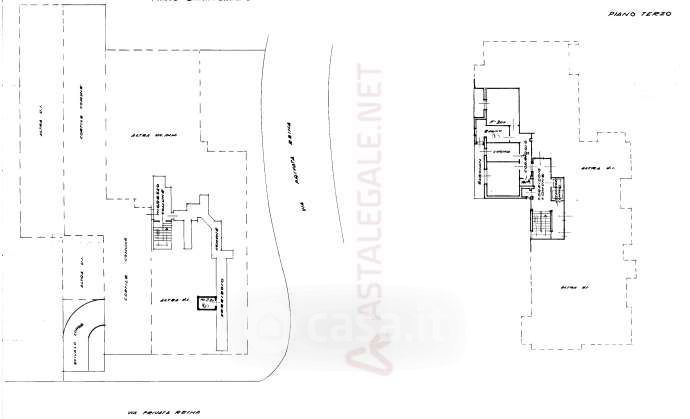
Appartamento in vendita Via Filippo Reina 69, Saronno
Salva
Casa.it
1/8
  • Street View
  • Map