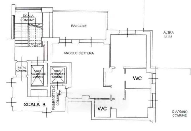
Appartamento in vendita Via San Rocco 8, Segrate
Salva
Casa.it
1/21
  • Street View
  • Map