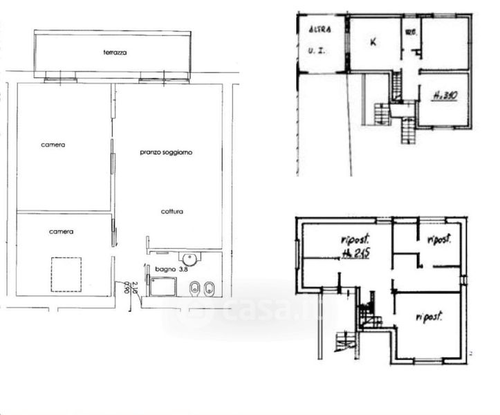
Appartamento in vendita Via Tioli 20, Sellero
Salva
Casa.it
1/17
  • Street View
  • Map