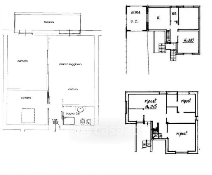
Appartamento in vendita Via Nazionale 39, Sellero
Salva
Casa.it
1/17
  • Street View
  • Map