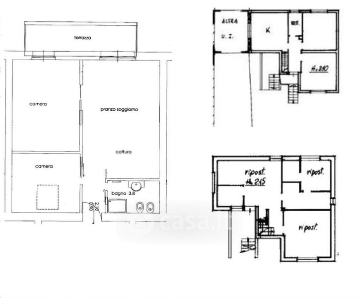
Appartamento in vendita Via Dassa 26, Sellero
Salva
Casa.it
1/33
  • Street View
  • Map