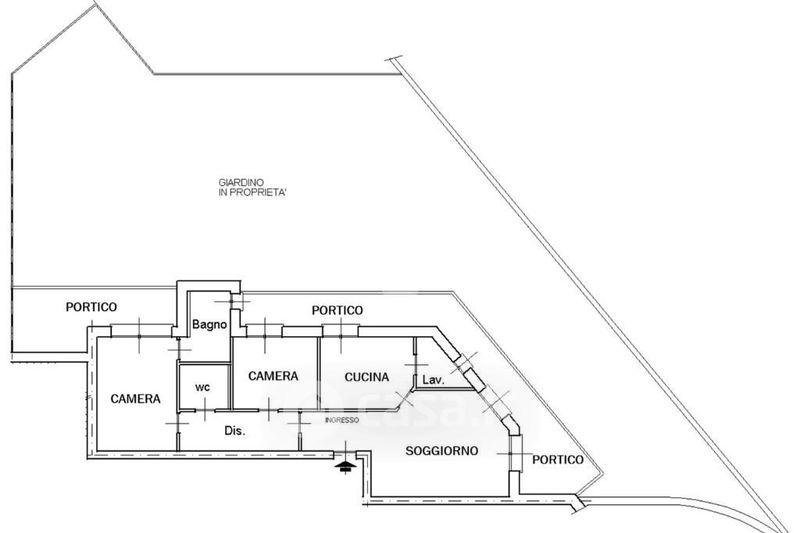
Appartamento in vendita Via Martiri di Marzabotto 23, Senago
Salva
Casa.it
1/50
  • Street View
  • Map