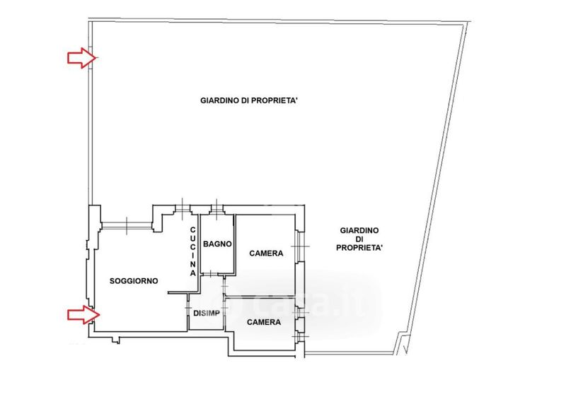
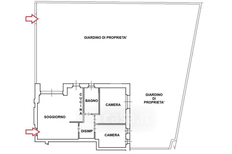
Appartamento in vendita Via Mascagni 85, Senago
Salva
Casa.it
1/46
  • Street View
  • Map