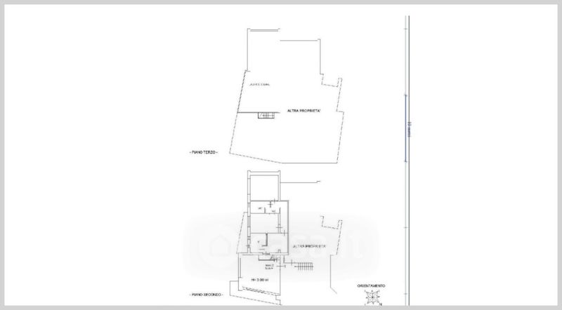
Appartamento in vendita Via Berzuini Angelo , Sermide e Felonica
Salva
Casa.it
1/32
  • Street View
  • Map