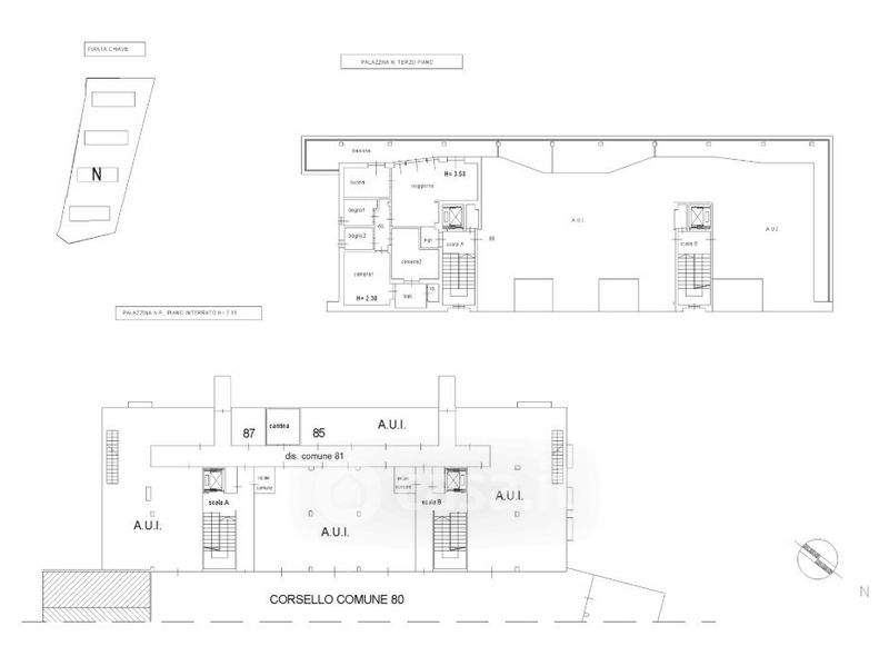
Appartamento in vendita Via Sandro Pertini , Settimo Milanese
Salva
Casa.it
1/31
  • Street View
  • Map