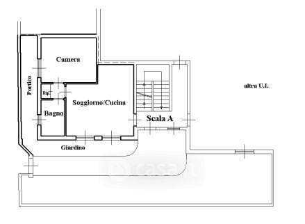
Appartamento in vendita Corso Isonzo 159, Seveso
Salva
Casa.it
1/37
  • Street View
  • Map