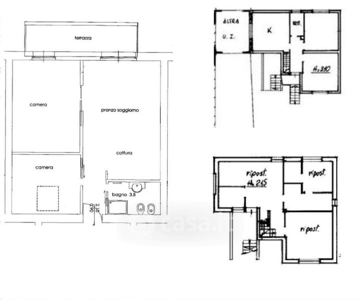
Appartamento in vendita Piazza Umberto I 3 F, Soiano del Lago
Salva
Casa.it
1/17
  • Street View
  • Map