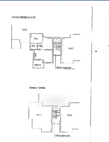
Appartamento in vendita Via J. Roveglio 17, Soiano del Lago
Salva
Casa.it
1/17
  • Street View
  • Map