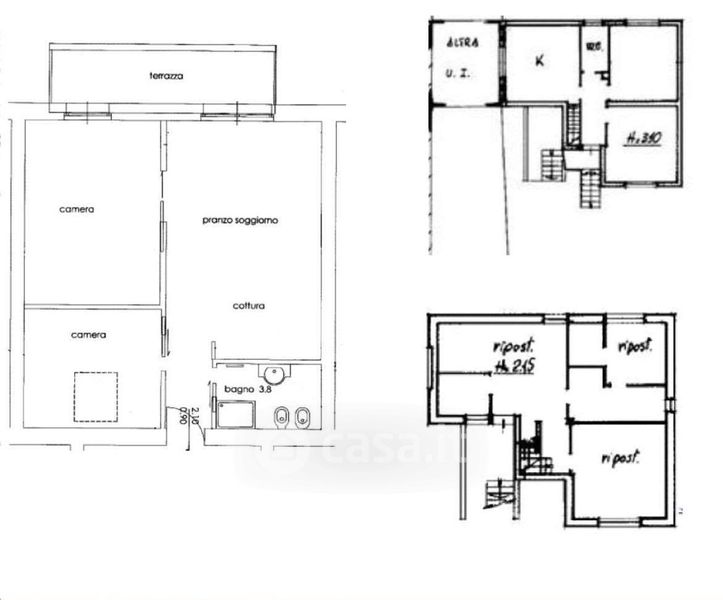
Appartamento in vendita Via dei Mille 6, Soresina
Salva
Casa.it
1/17
  • Street View
  • Map