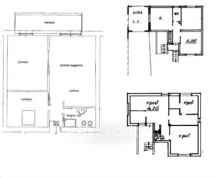
Appartamento in vendita Via Giacomo Leopardi 2, Soresina
Salva
Casa.it
1/13
  • Street View
  • Map