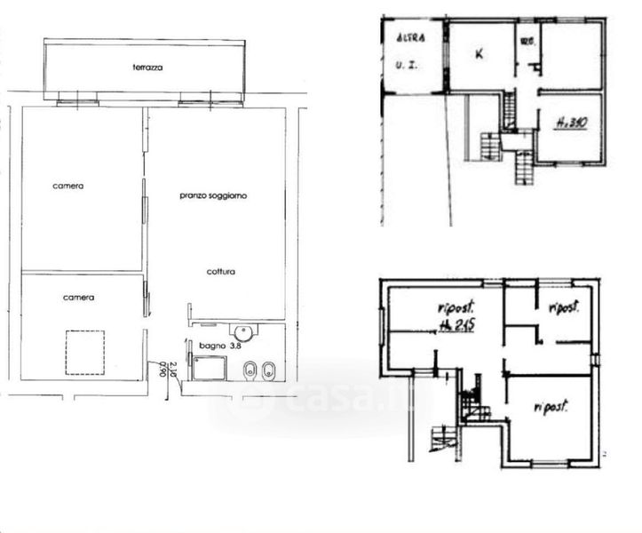
Appartamento in vendita Via Brodolini 8, Spino d'Adda
Salva
Casa.it
1/17
  • Street View
  • Map