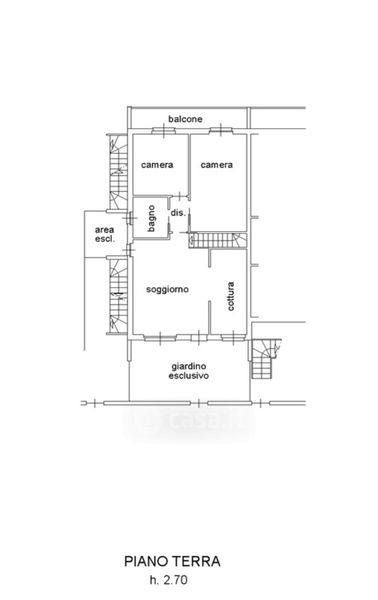
Appartamento in vendita Via Bloch 22, Spirano
Salva
Casa.it
1/19
  • Street View
  • Map