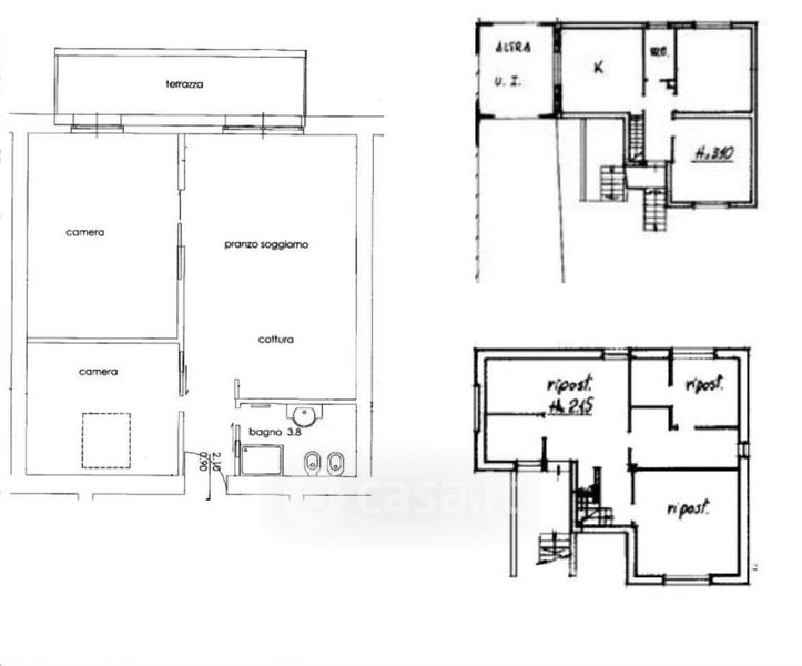
Appartamento in vendita Via Ognoli , Tavernola Bergamasca
Salva
Casa.it
1/31
  • Street View
  • Map