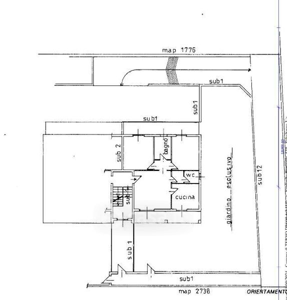
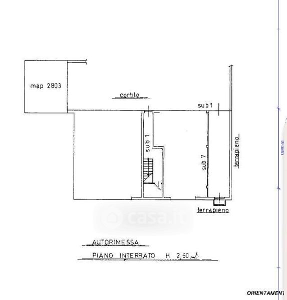
Appartamento in vendita Via Carvisi , Terno d'Isola
Salva
Casa.it
1/26
  • Street View
  • Map