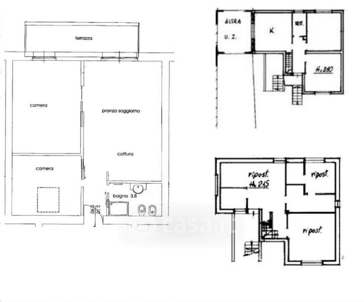
Appartamento in vendita Via Cesare Battisti 35, Torbole Casaglia
Salva
Casa.it
1/30
  • Street View
  • Map