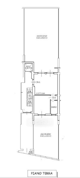
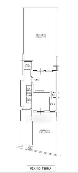
Appartamento in vendita Via alle Cave 12, Torre Boldone
Salva
Casa.it
1/24
  • Street View
  • Map