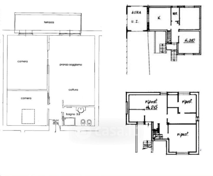
Appartamento in vendita Via Roina 32, Toscolano-Maderno
Salva
Casa.it
1/17
  • Street View
  • Map