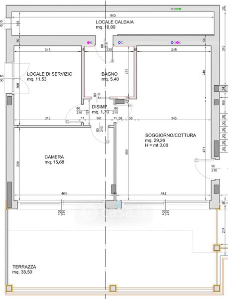
Appartamento in vendita Via Virgilio 8, Toscolano-Maderno
Salva
Casa.it
1/18
  • Street View
  • Map