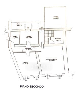
Appartamento in vendita Via Emilia Sommariva Seilliere 5, Tremezzina
Salva
Casa.it
1/22
  • Street View
  • Map