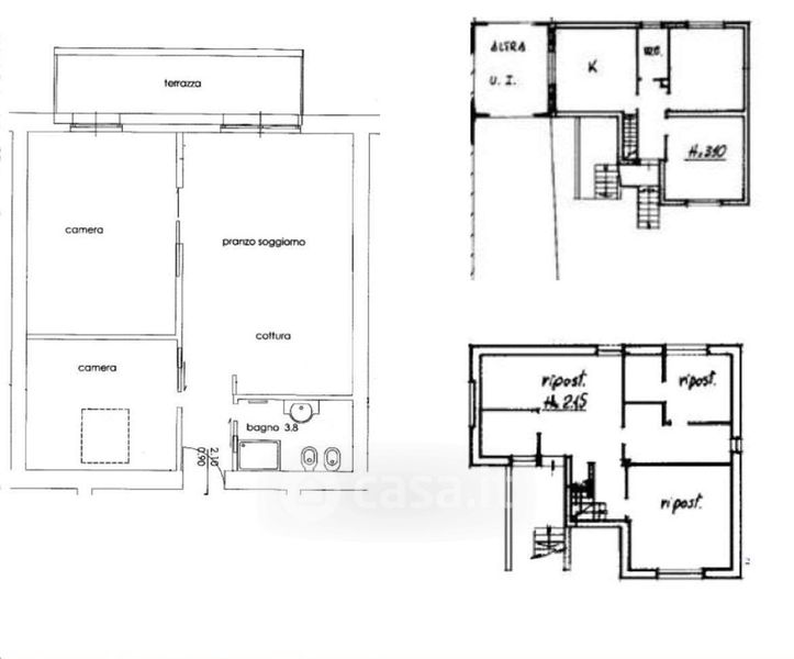
Appartamento in vendita Via Ernesto Baslini 7, Treviglio
Salva
Casa.it
1/13
  • Street View
  • Map