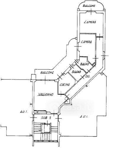
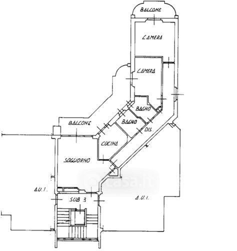
Appartamento in vendita Via Ernesto Baslini 2, Treviglio
Salva
Casa.it
1/23
  • Street View
  • Map