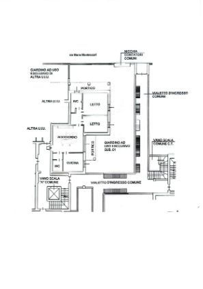
Appartamento in vendita Via Maria Montessori , Trezzano Rosa
Salva
Casa.it
1/42
  • Street View
  • Map