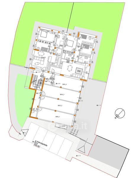
Appartamento in vendita Via Fratelli Cervi , Trezzano Rosa
Salva
Casa.it
1/9
  • Street View
  • Map