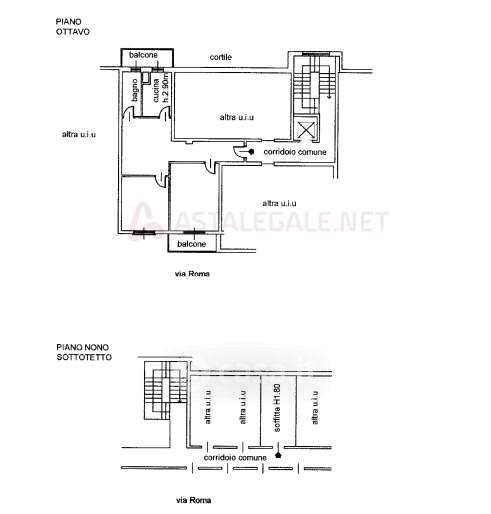
Appartamento in vendita Via Roma 14, Trezzano sul Naviglio
Salva
Casa.it
1/8
  • Street View
  • Map