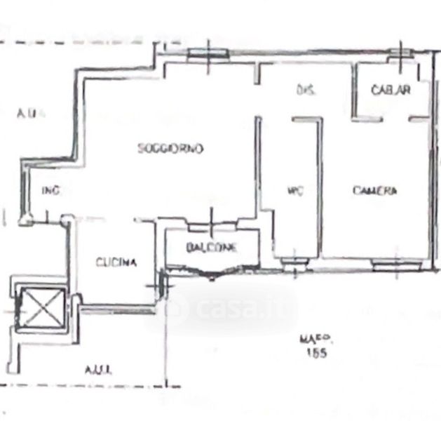
Appartamento in vendita Via W. Tobagi 14, Tribiano
Salva
Casa.it
1/26
  • Street View
  • Map