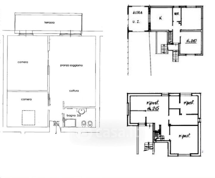
Appartamento in vendita Via Antonio Stradivari 14, Urago d'Oglio
Salva
Casa.it
1/17
  • Street View
  • Map