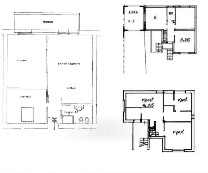
Appartamento in vendita Via Ferrari 40, Vailate
Salva
Casa.it
1/17
  • Street View
  • Map