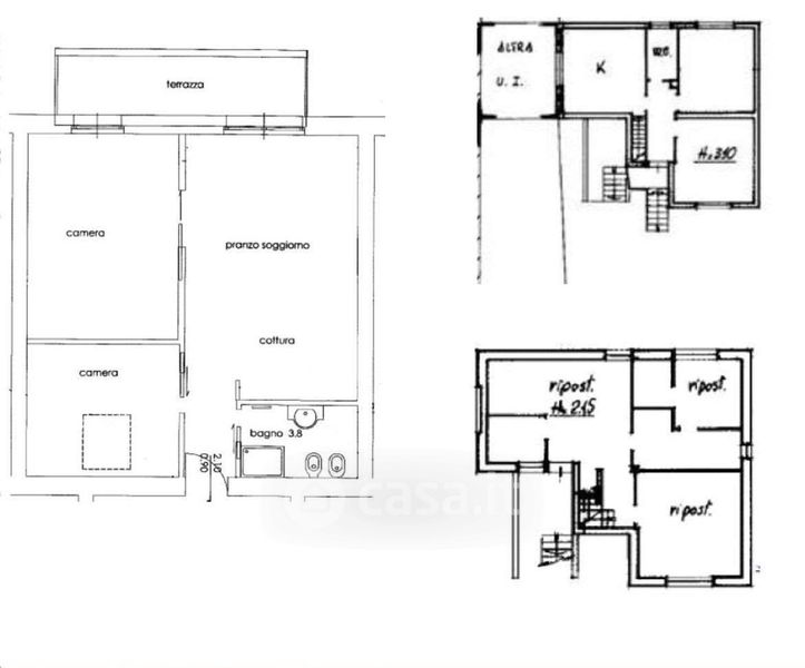
Appartamento in vendita Via Pietro da Vailate 13, Vailate
Salva
Casa.it
1/13
  • Street View
  • Map