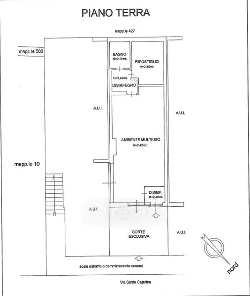
Appartamento in vendita Via Santa Caterina 7, Valfurva
Salva
Casa.it
1/9
  • Street View
  • Map