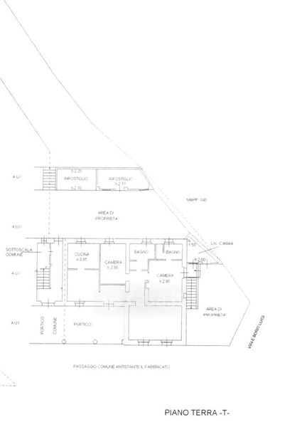
Appartamento in vendita Viale Luigi Borri 326, Varese
Salva
Casa.it
1/34
  • Street View
  • Map