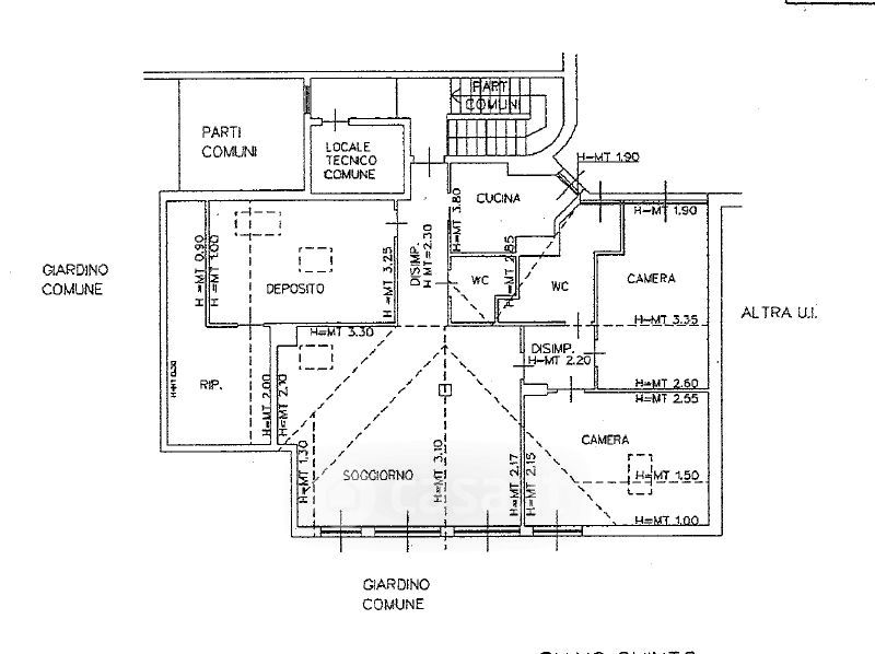
Appartamento in vendita Viale C. Battisti 1, Vedano al Lambro
Salva
Casa.it
1/28
  • Street View
  • Map