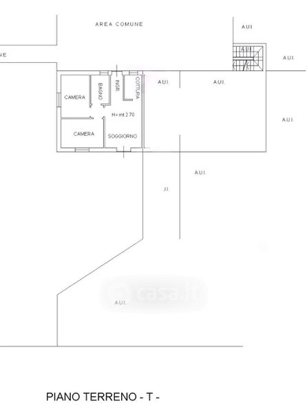
Appartamento in vendita Via F. Lli Kennedy 1, Venegono Inferiore
Salva
Casa.it
1/23
  • Street View
  • Map