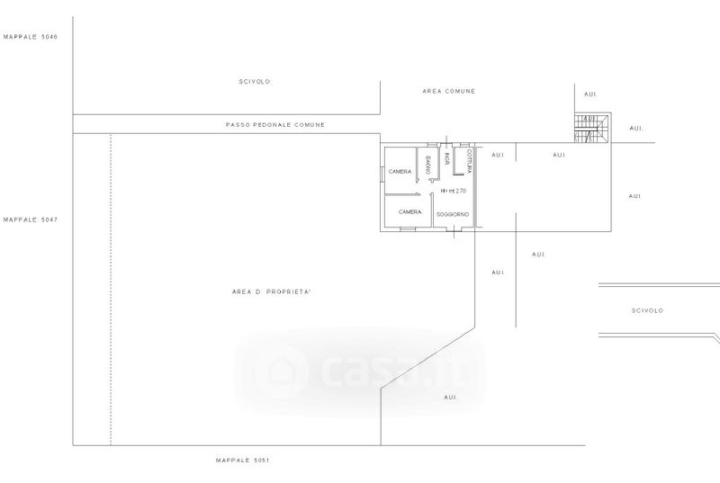
Appartamento in vendita Via Papa Giovanni XXIII , Venegono Superiore
Salva
Casa.it
1/32
  • Street View
  • Map