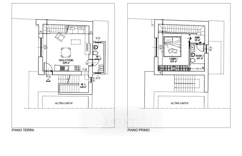
Appartamento in vendita Via Cavour , Verano Brianza
Salva
Casa.it
1/17
  • Street View
  • Map