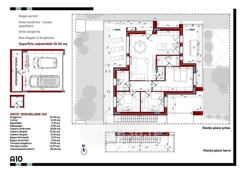
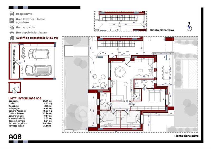
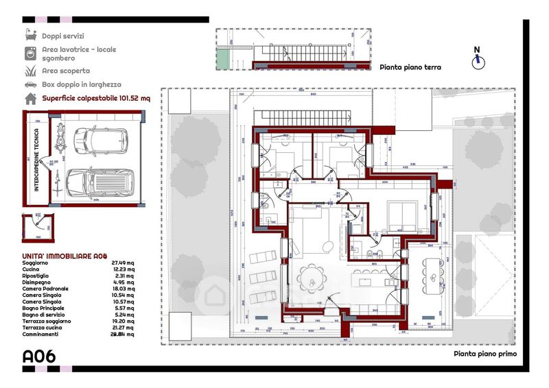
Appartamento in vendita Via Luigi Einaudi , Verdello
Salva
Casa.it
1/41
  • Street View
  • Map