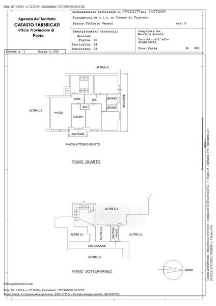
Appartamento in vendita Piazza Vittorio Veneto , Vigevano
Salva
Casa.it
1/37
  • Street View
  • Map